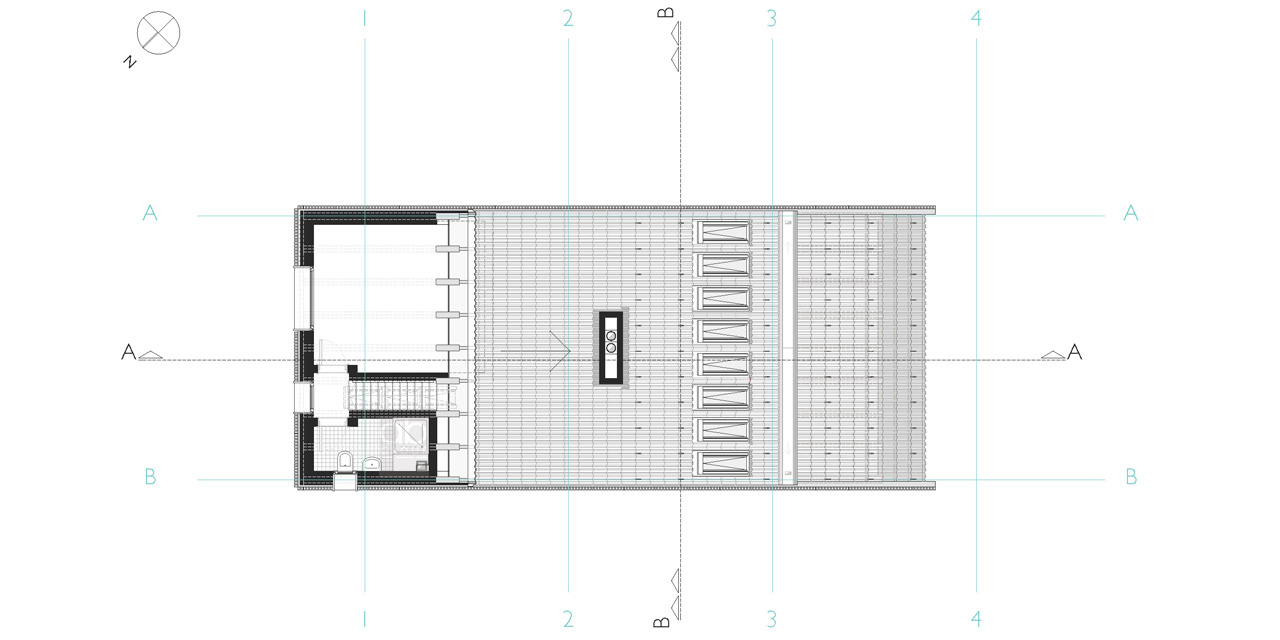
Villa ARIANA
VENDI Brezovicë/Kosovë | SIPËRFAQJA 150 M² | VITI 2007 | REALIZIMI 2008 | KLIENT z. Mentor Shala | AUTORËSIA Autor
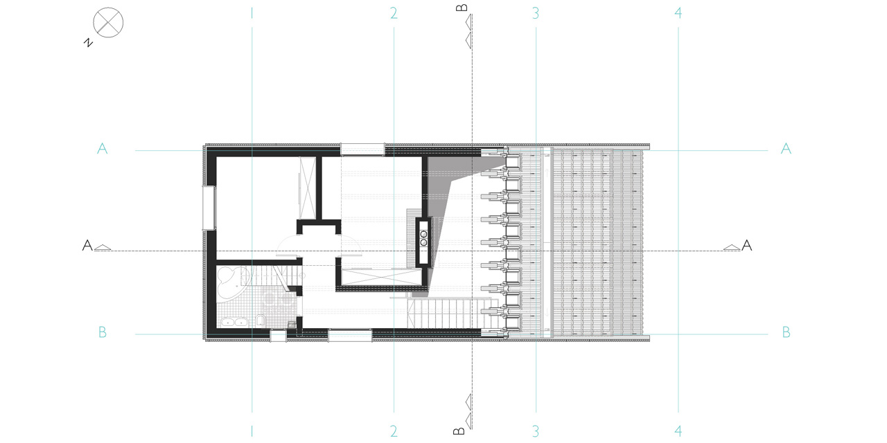
VENDI Brezovicë/Kosovë | SIPËRFAQJA 150 M² | VITI 2007 | REALIZIMI 2008 | KLIENT z. Mentor Shala | AUTORËSIA Autor