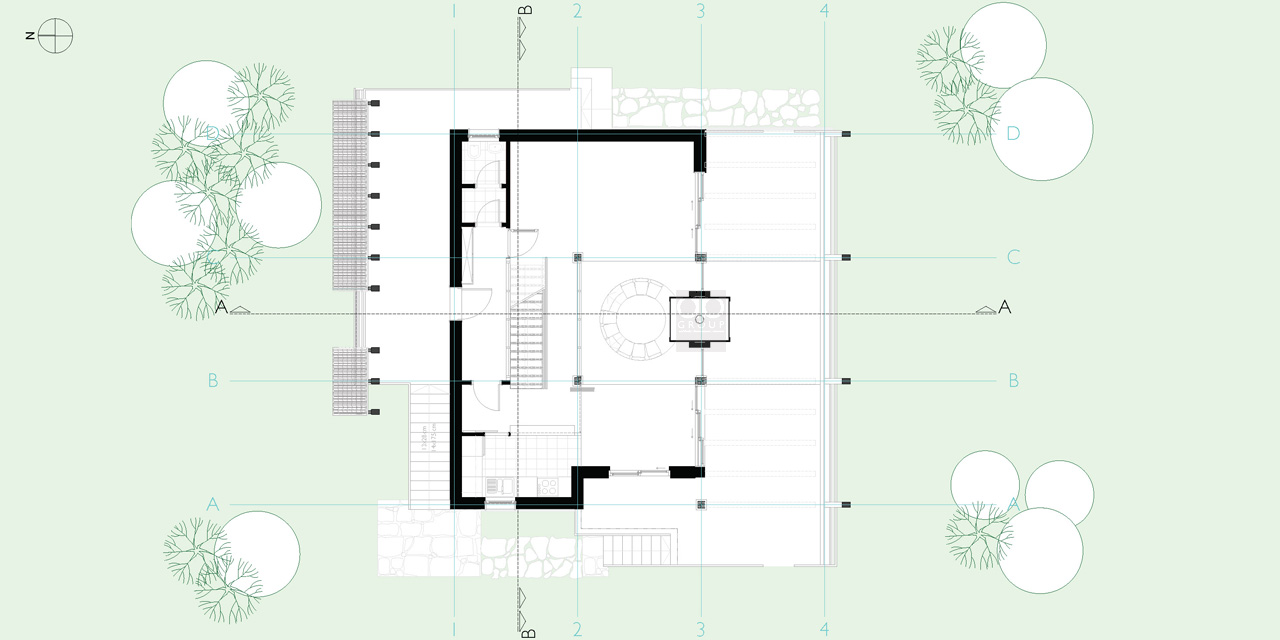
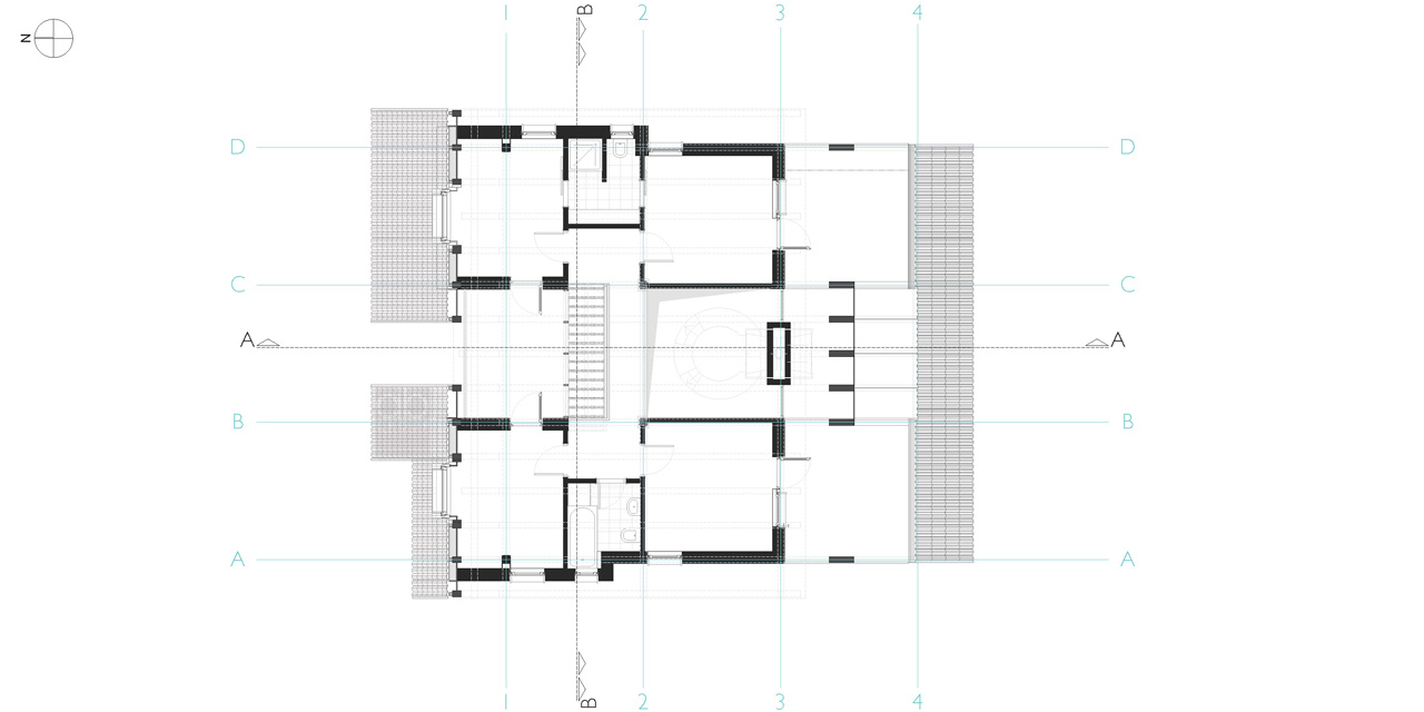
Villa GEGA
PLACE Brezovica/Kosovo | AREA 270 M² | YEAR 2007 | FINISHED 2008 | CLIENT mr. Gegë Kryeziu | COPYRIGHT Author
PLACE Brezovica/Kosovo | AREA 270 M² | YEAR 2007 | FINISHED 2008 | CLIENT mr. Gegë Kryeziu | COPYRIGHT Author